Gréement mat...
  • stelian
    Messages : 45
    Inscription : lun. 17 mai 2021 13:59

    Gréement mat...

    par stelian » mer. 11 août 2021 22:04

    Bonsoir à tous,

    J'ai récupéré mon F18 avec le mat complètement dégréé, et je me pose quelques questions sur l'utilité des différents passages, poulies, etc.

    Si vous pouviez me confirmer le schéma ci dessous, par rapport aux photos, ça serait super !

    B1: passage dans le mat pour drisse SPI ?
    B2, B3: ???
    B4: ???
    B5: fixation du tangon ?
    T1: passage dans le mat pour drisse VA ?
    T2: passage dans le mat pour drisse GV
    T3: même que B4
    T4: taquet pour ???
    T5: même que B5
    T6: poulie pour ???
    T7: anneau pour une poulie pour le SPI ?
    T8: petite poulie pour ???

    Merci pour votre aide !
    Pièces jointes
    tribord-haut-anno.jpg
    tribord-bas-anno.jpg
    babord-bas-anno.jpg
  • Avatar de l’utilisateur
    Petipas
    Messages : 67
    Inscription : mar. 14 oct. 2014 17:48
    Localisation : Morbihan

    Re: Gréement mat...

    par Petipas » jeu. 12 août 2021 10:24

    B1: passage dans le mat pour drisse SPI ?Peut-être, mais l’idéal est une sortie haute pour envoyer à la volée
    B2, B3: ??? Les ris ?
    T3 B4: Guide ralingue, dit « couilles de chat »
    B5: fixation du tangon Oui
    T1: passage dans le mat pour drisse VA ?
    T2: passage dans le mat pour drisse GV ( La drisse la plus utilisée au plus haut, comme le spi.) L’autre est négligeable si enrouleur.
    T4: taquet pour ???
    T5: même que B5
    T6: J’ai déjà vu une drisse d’émerillon d’enrouleur au dessus du capelage d’étai. Intéressant mais contestable.
    Y a-t-il une drisse qui sort sous l’étai ?
    T7: anneau pour une poulie pour le SPI ? Pour un super spi, hors cotes !
    T8: petite poulie pour Balancine
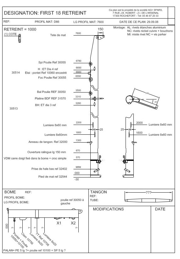
    Et voici un excellent exemple, cohérent:
    Pièces jointes
    FIRST-18-RETREINT.jpg
  • stelian
    Messages : 45
    Inscription : lun. 17 mai 2021 13:59

    Re: Gréement mat...

    par stelian » jeu. 12 août 2021 22:15

    Merci pour ta réponse.

    Effectivement j'ai un enrouleur Plastimo 406-S , il semblerait que la drisse de l'émerillon devrait être en dessous du capelage de l'étai d'après la doc, je vais vérifier demain si j'ai une sortie de drisse.

    Si T7 c'est pour un "super" SPI, le SPI "normal" devrait être où ?

    La balancine n'est pas un peu haute en T8 ? D'après ton plan elle serait un peu au dessus des barres de flèche...

    Quand aux lumières du mat, j'en ai trois: une haute et deux basses. Du coup tu préconises de mettre la drisse de SPI sur la haute, et GV/VA sur les lumières basses ?

    Je regarde à nouveau mon mât demain matin et je complète si besoin...
  • stelian
    Messages : 45
    Inscription : lun. 17 mai 2021 13:59

    Re: Gréement mat...

    par stelian » jeu. 12 août 2021 22:37

    Et la balancine du tangon de SPI, elle passerait par où ?
  • Avatar de l’utilisateur
    Petipas
    Messages : 67
    Inscription : mar. 14 oct. 2014 17:48
    Localisation : Morbihan

    Re: Gréement mat...

    par Petipas » ven. 13 août 2021 09:53

    Pour le 406-S , ça peut marcher d'au dessus. déja vu!

    le SPI "normal" se trouve à qq centimètres au dessus du capelage, mais tu peux utiliser le supérieur, le spi d'origine est dérisoire

    J'ai viré la balancine, remplacée par un lazy.
    Va au plus pratique et à l'usage le plus fréquent, la GV privilégiée. Dans l'avenir, tu peux renvoyer le spi au cockpit?
    Balancine de tangon remplacée par un fort sandow à poste.
    Un dernier(?) truc, vérifie tes pops de vit de mulet : sur ce mat ancien, y a risques... surtout si il y a un hale bas correct!
  • stelian
    Messages : 45
    Inscription : lun. 17 mai 2021 13:59

    Re: Gréement mat...

    par stelian » ven. 13 août 2021 10:03

    Après vérification, il n'y a pas de sortie de drisse au niveau du capelage de l'étai (voir photos), donc l'émerillon de l'enrouleur devait être fixé sur la poulie au dessus du capelage (B6/T6 sur mon schéma).

    Et comme je n'ai aucune lumière / poulie intérieure sur le haut du mat mis à part celle de tout en haut du mat pour la GV, j'en déduis que la drisse de SPI et la drisse de VA doivent être à l'extérieur du mat.

    Et il y a une poulie juste au dessus des barres de flèches que j'avais pas mis dans mon plan, qui doit probablement être utilisée pour la balancine de tangon.

    Du coup, voici mon plan, est-ce que c'est bon ?

    B1: lumière dans le mat, pas utilisé
    B2, B3: ??? (je ne vois pas à quoi ça servirait pour les ris ?)
    B4: guide ralingue dit « couilles de chat »
    B5: fixation du tangon
    B8: poulie pour balancine tangon SPI
    T1: lumière dans le mat, pas utilisé
    T2: lumière dans le mat, passage de la drisse GV
    T3: même que B4
    T4: taquet pour ???
    T5: même que B5
    T6: poulie pour émerillon enrouleur
    T7: anneau pour une poulie pour le SPI
    T8: petite poulie pour balancine
    Pièces jointes
    babord-full-anno.jpg
    IMG_20210813_103212.jpg
  • stelian
    Messages : 45
    Inscription : lun. 17 mai 2021 13:59

    Re: Gréement mat...

    par stelian » ven. 13 août 2021 10:08

    On a écrit en même temps...
    Pour le 406-S , ça peut marcher d'au dessus. déja vu!
    Oui c'est ce que j'en ai déduit ausi.
    le SPI "normal" se trouve à qq centimètres au dessus du capelage, mais tu peux utiliser le supérieur, le spi d'origine est dérisoire
    Je ne sais pas si j'ai un SPI d'origine ou pas, j'ai mesuré le mien il fait environ 5m40 par 5m40 par 3m55...
    J'ai viré la balancine, remplacée par un lazy.
    Va au plus pratique et à l'usage le plus fréquent, la GV privilégiée. Dans l'avenir, tu peux renvoyer le spi au cockpit?
    Balancine de tangon remplacée par un fort sandow à poste.
    Un dernier(?) truc, vérifie tes pops de vit de mulet : sur ce mat ancien, y a risques... surtout si il y a un hale bas correct!
    Ok je regarderai, merci !
  • Avatar de l’utilisateur
    Petipas
    Messages : 67
    Inscription : mar. 14 oct. 2014 17:48
    Localisation : Morbihan

    Re: Gréement mat...

    par Petipas » ven. 13 août 2021 10:48

    Après vérification, il n'y a pas de sortie de drisse au niveau du capelage de l'étai (voir photos), donc l'émerillon de l'enrouleur devait être fixé sur la poulie au dessus du capelage (B6/T6 sur mon schéma)
    Sûr de ça?!? Le réa est ptet bloqué ou effondré, mais ça me semble incohérent. Je n'ai pas le même capelage.
    Et le spi est tout petit, tout riquiqui...
  • stelian
    Messages : 45
    Inscription : lun. 17 mai 2021 13:59

    Re: Gréement mat...

    par stelian » ven. 13 août 2021 14:11

    Après vérification, il n'y a pas de sortie de drisse au niveau du capelage de l'étai (voir photos), donc l'émerillon de l'enrouleur devait être fixé sur la poulie au dessus du capelage (B6/T6 sur mon schéma)
    Sûr de ça?!? Le réa est ptet bloqué ou effondré, mais ça me semble incohérent. Je n'ai pas le même capelage.
    Je raconte effectivement des bêtises, il y a bien un réa juste en dessous du capelage. Donc la drisse de VA (enrouleur) doit passer par là, à l'intérieur du mat, et ressortir par B1 ou T1.
    Et le spi est tout petit, tout riquiqui...
    On fait avec ce qu'on a... :)

    Du coup la poulie juste au dessus du capelage de l'étai (T6) sert pour mon petit SPI, l'anneau au dessus pouvant servir pour un grand SPI quand j'en aurai un...

    Cette fois ci ça devrait être bon non?
    Pièces jointes
    IMG_20210813_150539.jpg
  • Avatar de l’utilisateur
    Petipas
    Messages : 67
    Inscription : mar. 14 oct. 2014 17:48
    Localisation : Morbihan

    Re: Gréement mat...

    par Petipas » ven. 13 août 2021 21:48

    Eau bouillante puis WD40!!!

Qui est en ligne ?

Utilisateurs parcourant ce forum : Aucun utilisateur inscrit et 2 invités